1-Acacia @ Lapangan Panorama Acacia
Guarded Community semi-d , cluster & bungalow at Pasir Putih Ipoh.............. Alex 016-521 3093
Pages
1 Acacia →
Show House
2 Sty Cluster 35'x70'
2 Sty Cluster 35'x75'
2 Sty Semi-D 35'x90'
Road-Map 1 Acacia
Pages
Ipoh Projects →
1Bercham
1 Tasek
Tasek Square
Harmoni Tasek
Tasek Area
Ipoh Town
Ampang Residency
Hartamas Botani
S Eco Botani
ParkView
Lang Villa
Lahat Baru
Meru
1 Chemor
1 Pertama
Pages
Out of Ipoh →
Sri Wangsa
Batu Gajah
Si-Puteh
Tronoh
Kampar
K Kangsar
Teluk Intan
S Iskandar (UTP)
Seri Iskandar
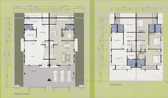
2 Sty Cluster 35'x70'
2 Storey Cluster 35' x 70'
Home
Subscribe to:
Comments (Atom)